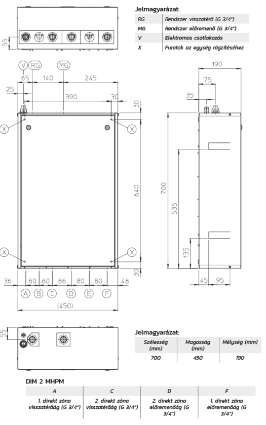
DIM 2 MHPM

Rendelési kód | 3.032264
  • 3 bar Maximális rendszer nyomás
  • 90.00°C Maximális fűtővíz hőmérséklet
  • 31,40 Szivattyú hasznos teljesítménye (1000l/óra mellett) keverőszelep nélküli körön
  • - Szivattyú hasznos teljesítménye (1000l/óra mellett) keverőszelepes körön

Bemutatás

Hidraulikus zóna egység két direkt körhöz

 

DIM 2 hidraulikai modulok zárt lemez szekrényben, falra szerelhető (vagy igény szerint falbasüllyeszthető) kivitelben. Előnyük a kis helyigény - mélységük mindössze 19 cm! - valamint az esztétikus megjelenésük és a könnyű felszerelhetőségük. Mindegyik modul tartalmazza a zónák függetlenített vezérlését (zónánkénti szobatermosztát opcióval), a megfelelő számú fűtési keringtető szivattyút és a hőszigetelt hidraulikai váltót a bekötő csövekkel és csatlakozókkal, valamint az ABT változat esetében a motoros keverőszelepet és integrált időjárásfüggő szabályozást. Ezekkel a DIM egységekkel szinte bármilyen szabályozási igény megoldható, mivel korlátlan számban összeköthetőek! A továbbfejlesztett elektronikának köszönhetően a DIM egységeket Immergas BUS csatlakozással felszerelt hőszivattyúkkal üzemeltetve az egyes zónák időjárásfüggő szabályozásának működéséhez egy érzékelő csatlakoztatása is elegendő. Az egységek alacsony energiaszíntű szivattyúval felszereltek.

Méretek

"

Műszaki adatok

"

Letölthető anyagok

Kézikönyv
Oldal tetejére