HERCULES Condensing 26 kW

Rendelési kód | 3.019196
Kifutott termék.
  • 23.9kW Névleges fűtési teljesítmény
  • 25.8kW Névleges HMV teljesítmény
  • Álló hőközpont Működés módja
  • - Szezonális hatásfok (2010/30/EU)
  • 1600 / 600 / 600 Méret (mag/szél/mély)

Bemutatás

A HERCULES Condensing 26 kW típusú álló, kondenzációs elven működő gázkazán 24 kW teljesítménnyel képes fűtési, és 26 kW-tal használati melegvizet előállítani. A készülékek 120 literes, rozsdamentes acélból készült beépített használati melegvíz tárolóval rendelkeznek. A tároló a készülék alsó részén helyezkedik el, fölötte a gáz berendezések illetve a hidraulikai egységek találhatók. Ennek az elrendezésnek köszönhetően a készülék kompakt méretű. A HERCULES Condensing kazánok többzónás rendszerben is alkalmazhatók, zónánkénti szobatermosztátos szabályozással. Az opcionális bővítőkészletekkel legfeljebb három fűtési zóna kilakaítása lehetséges, melyek közül kettő keverőszelepes (alacsony hőmérsékletű) is lehet. A HERCULES Condensing készülékek nagy vízterű fűtési rendszerekhez is alkalmazhatók. A tároló két fűtőcsőkígyója révén napkollektoros rendszerrel is összeköthető. A készülék az (opcionális) Super Amico távszabályzóval könnyen és gyorsan, a készüléktől távolról is vezérelhető. Külső érzékelő (opcionális) csatlakoztatása esetén időjárásfüggő szabályozás (alap felszereltség) használata is lehetséges.

KÉT FÜGGETLEN HŐCSERÉLŐ

Mind a fűtési, mind a HMV hőcserélő rozsdamentes acélból készült.

DIGITÁLIS VEZÉRLÉSŰ LÁNGMODULÁCIÓ

Az elektronikus lángmoduláció folyamatos energia megtakarítás és emelt szintű komfort biztosítása mellett képes a fűtővíz, valamint a használati melegvíz hőmérsékletének megfelelő szabályozására.

AUTOMATIKUS BY-PASS

Az automatikus by-pass része a készülék alapfelszerelésének, és lehetővé teszi a kazán használatát termosztatikus szeleppel felszerelt radiátoros rendszer esetén is.

MOTOROS VÁLTÓSZELEP

A használati melegvíz előállításakor beépített, segédenergiával működtetett váltószelep irányítja a kazánvizet a HMV hőcserélő felé.

BEÉPÍTETT ROZSDAMENTES TÁROLÓ

A beépített 120 literes űrtartalmú melegvíztároló lehetővé teszi a melegvíz felhasználást több csapoló, például két fürdőszoba egyidejű használata esetén is. A második fűtőcsőkígyó révén napkollektoros rendszerre is kapcsolható.

HMV TÁGULÁSI TARTÁLY

A HMV körben jelentkező nyomásnövekedés kompenzálására a HERCULES Condensing ErP készülékek egy második beépített tágulási tartállyal is rendelkeznek a HMV kör számára.

EGYÜTTMŰKÖDÉS A DIM EGYSÉGEKKEL 

Ezek a készülékek képesek együttműködni az Immergas DIM egységeivel, így lehetséges mégtöbb, egymástól független fűtési (akár radiátoros, akár kevert) kör kialakítása.

BEÉPÍTETT IDŐJÁRÁSFÜGGŐ SZABÁLYOZÁS

Az időjárásfüggő szabályozás magasabb komfort mellett biztosít költséghatékonyabb üzemelést. Az elektronika a külső hőmérséklet függvényében változtatja a kazánvíz-hőmérsékletet, így energiát takarít meg, és magasabb komfortot biztosít.

ZÓNÁSÍTOTT RENDSZEREKHEZ ALKALMAS

A HERCULES Condensing készülékeket többzónás rendszerekhez tervezték. A készülékek ötféle kiépítésben alkalmazhatóak: 1, 2 vagy 3 radiátoros zóna, 1 radiátoros + 2 keverőszelepes, vagy 2 radiátoros és egy keverő szelepes zóna kiszolgálására képesek. A zónák külön-külön szabályozhatók egy-egy termosztát segítségével. Az 1. zóna keringető szivattyúja része az alapfelszereltségnek! Az ABT jelzésű kazán a keverőszelepes körhöz gyárilag tartalmazza az 1 radiátoros + 1 keverőszelepes zóna kiszolgálásához szükséges egységeket (két fűtőköri szivattyú, egy motoros keverőszelep, automata by-pass szelepek és szerelvények).

MODULÁCIÓS KERINGETŐ SZIVATTYÚ

A keringető szivattyú sebességét a vezérlő elektronika folyamatosan változtatja úgy

PROGRAMOZHATÓ HMV TÁROLÓ FŰTÉS

Az opcionális Super Amico távvezérlő segítségével a beépített használati melegvíz tároló időpogram szerint fűthető.

NAGYMÉRETŰ LCD KIJELZŐ

A nagyméretű kijelzőn a készülék számos információt közöl a felhasználóval. Megjeleníti a különböző működési jellemzőket, az aktuális funkciót (szivattyú utókeringtetés, égéstér szellőztetés, HMV készítés, stb.) vagy akár az üzemórák, gyújtások számát.

KONDENZÁCIÓS TECHNOLÓGIA

Az égéstermék rejtett hőjének (vízgőz tartalmának) kihasználása (kondenzációja) révén ugyanannyi energiát, mint a hagyományos, nem kondenzációs készülékek, kevesebb gáz eltüzelésével képesek leadni. A jobb tüzeléstechnikai hatásfok révén nem csak energiát takarít meg, hanem a környezetet is kevésbé terheli.

IPX5D ELEKTROMOS VÉDETTSÉG

Magas páratartalmú és fröccsenő vizes környezetben is biztosítja a készülék biztonságos működését.

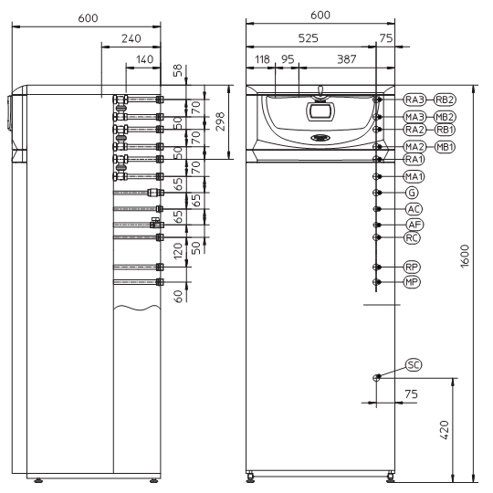
Méretek

BEFOGLALÓ MÉRETEK

Típus

Magasság
[mm]

Szélesség
[mm]

Mélység
[mm]

Füstgáz elvezetés / levegő bevezetés mérete

[mm]

HERCULES Condensing 26 kW

1600

600

600

Ø 60/100

A készülék jobboldalán található kis ajtó nyithatósága érdekében annál az oldalnál a faltól legalább 300mm távolságot kell hagyni!

CSATLAKOZÓ MÉRETEK

RA3

3. direkt fűtési (magas hőmérsékletű) zóna visszatérő vezeték csatlakozása (opcionális)

G3/4”

MA3

3. direkt fűtési (magas hőmérsékletű) zóna előremenő vezeték csatlakozása (opcionális)

G3/4”

RA2

2. direkt fűtési (magas hőmérsékletű) zóna visszatérő vezeték csatlakozása (opcionális)

G3/4”

MA2

2. direkt fűtési (magas hőmérsékletű) zóna előremenő vezeték csatlakozása (opcionális)

G3/4”

RB2

2. keverőszelepes (alacsony hőmérsékletű) fűtési zóna visszatérő vezeték csatlakozása (opcionális)

G1”

MB2

2. keverőszelepes (alacsony hőmérsékletű) fűtési zóna előremenő vezeték csatlakozása opcionális)

G1”

RB1

1. keverőszelepes (alacsony hőmérsékletű) fűtési zóna visszatérő vezeték csatlakozása (opcionális)

G1”

MB1

1. keverőszelepes (alacsony hőmérsékletű) fűtési zóna előremenő vezeték csatlakozása (opcionális)

G1”

RA1

1. direkt fűtési (magas hőmérsékletű) zóna visszatérő vezeték csatlakozása

G3/4”

MA1

1. direkt fűtési (magas hőmérsékletű) zóna előremenő vezeték csatlakozása

G3/4”

G

Gáz

G1/2”

AC

Használati melegvíz csatlakozása

G3/4”

AF

Használati hidegvíz csatlakozása

G3/4”

RC

Használati melegvíz cirkulációs vezeték csatlakozása (opcionális)

G1/2”

RP

Napkollektoros rendszer előremenő vezeték csatlakozása (opcionális)

G3/4”

MP

Napkollektoros rendszer visszatérő vezeték csatlakozása (opcionális)

G3/4”

SC

Kondenzvíz elvezetés, legalább 13 mm belső átmérő

 

Letölthető anyagok

CE Tanúsítvány
Kézikönyv
CAD fájl
EU megfelelőségi nyilatkozat
Égéstermék elvezetés méretezés
Oldal tetejére