VICTRIX Superior 32 ErP
- 32.0kW Névleges fűtési teljesítmény
- 32.0kW Névleges HMV teljesítmény
- Fali átfolyós kombi Működés módja
- 91% "A" kategória Szezonális hatásfok (2010/30/EU)
- 830 / 440 / 350 Méret (mag/szél/mély)
Bemutatás
A Victrix Superior 32 ErP fali készülék 32kW teljesítménnyel képes fűtési, illetve átfolyós rendszerben használati melegvizet előállítani. A Victrix Superior 32 ErP kazánok új, nagyteljesítményű hidraulikai egysége kis szervizigényű és az alacsony hidegvíz rendszernyomással is jól együttműködik. A készülék az új Super Amico vagy a korábbi Amico távszabályzóval (opcionális) könnyen és gyorsan, a készüléktől távolról is vezérelhető. Külső érzékelő (opcionális) csatlakoztatása esetén időjárásfüggő szabályozás (alap felszereltség) használata is lehetséges. Modulációs szivattyúja még takarékosabbá teszi a készüléket, hiszen a szivattyú fordulatszámát a vezérlő elektronika képes szabályozni. Felhasználóbarát elektronikájának köszönhetően egyszerűen üzemeltethető.
KÉT FÜGGETLEN HŐCSERÉLŐ
Mind a fűtési, mind a HMV hőcserélő rozsdamentes acélból készült.
DIGITÁLIS VEZÉRLÉSŰ LÁNGMODULÁCIÓ
Az elektronikus lángmoduláció folyamatos energia megtakarítás és emelt szintű komfort biztosítása mellett képes a fűtővíz, valamint a használati melegvíz hőmérsékletének megfelelő szabályozására.
SZABÁLYOZHATÓ BY-PASS
A szabályozható by-pass része a készülék alapfelszereltségének, és lehetővé teszi a kazán használatát termosztatikus szeleppel felszerelt radiátoros rendszer esetén is.
MOTOROS VÁLTÓSZELEP
A használati melegvíz előállításakor a beépített, motoros váltószelep irányítja a kazánvizet a HMV hőcserélő felé.
„AQUA CELERIS” RENDSZER
Egy gombnyomással aktiválható az úgynevezett Aqua Celeris berendezés, mely lehetővé teszi, hogy a kihűlt HMV hőcserélő miatt jelentkező HMV szolgáltatás késlekedése kiküszöbölhető legyen.
NAGYMÉRETŰ LCD KIJELZŐ
A nagyméretű kijelzőn a készülék számos információt közöl a felhasználóval. Megjeleníti a különböző működési jellemzőket, az aktuális funkciót (szivattyú utókeringtetés, égéstér szellőztetés, HMV készítés, stb.) vagy akár az üzemórák, gyújtások számát.
EGYÜTTMŰKÖDÉS A DIM EGYSÉGEKKEL
A Victrix Superior 32 ErP készülék képes teljes körűen együttműködni az Immergas DIM egységeivel, így lehetséges több, egymástól független fűtési kör (akár radiátoros, akár kevert) kialakítása.
BEÉPÍTETT IDŐJÁRÁSFÜGGŐ SZABÁLYOZÁS
Az időjárásfüggő szabályozás magasabb komfort mellett biztosít költséghatékonyabb üzemelést. Az elektronika a külső hőmérséklet függvényében változtatja a kazánvíz-hőmérsékletet, így energiát takarít meg és magasabb komfortot biztosít.
KONDENZÁCIÓS TECHNOLÓGIA
Az égéstermék rejtett hőjének (vízgőz tartalmának) kihasználása (kondenzációja) révén ugyanannyi energiát, mint a hagyományos, nem kondenzációs készülékek, kevesebb gáz eltüzelésével képesek leadni. A jobb tüzeléstechnikai hatásfok révén nem csak energiát takarít meg, hanem a környezetet is kevésbé terheli.
MODULÁCIÓS SZIVATTYÚ
A vezérlő elektronika képes automatikusan kiválasztani a három sebességi fokozatból a megfelelőt, hogy az előremenő és a visszatérő fűtővíz hőmérsékletének különbsége mindig a beállított értékű legyen.
IPX5D ELEKTROMOS VÉDETTSÉG
Magas páratartalmú és fröccsenő vizes környezetben is biztosítja a készülék biztonságos működését. A fürdőszoba I. zónájába is elhelyezhető, akár kád fölé is.
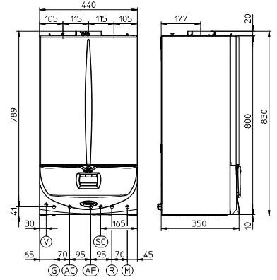
Méretek
|
BEFOGLALÓ MÉRETEK |
||||
|
Típus |
Magasság [mm] |
Szélesség [mm] |
Mélység |
Füstgáz evezetés / levegő bevezetés mérete [mm] |
|
VICTRIX Superior 32 ErP |
830 |
440 |
350 |
Ø 60/100 |

|
CSATLAKOZÓ MÉRETEK |
|||||||
|
Típus |
Fűtési előremenő |
Fűtési visszatérő |
Használati melegvíz |
Kondenzvíz elvezetés SC |
Használati hidegvíz |
Gáz
|
Elektromos hálózat V |
|
VICTRIX Superior 32 ErP |
3/4" |
3/4" |
1/2" |
NA25 |
1/2" |
3/4" |
22OV / 50Hz |
Műszaki adatok
Kiegészítők
Külsőhőmérséklet-érzékelő
Fűtési elzárócsapok roppantó gyűrűs csatlakozással, szűrővel szerelve
Kondenzvíz átemelő szivattyú
Alpha mágneses örvényszűrő
Kétfunkciós termosztatikus szolár szelep átfolyós kombi készülékekhez
Fűtési elzárócsapok roppantó gyűrűs csatlakozással (2 db)
Kaszkád csatoló egység (3.015244 Kaszkád- és zónaszabályozóhoz)
Univerzális flexibilis bekötőcső készlet fali kiálláshoz
Biztonsági termosztát készlet
Kézi vezérlésű szobatermosztát
Crono 7 heti programozású, digitális szobatermosztát
Crono 7 vezeték nélküli, heti programozású, digitális szobatermosztát
Tybox 21 digitális szobatermosztát
Tybox 117 heti programozású, digitális szobatermosztát
Tybox 137 vezeték nélküli, heti programozású, digitális szobatermosztát
Super AMICO heti programozású digitális távvezérlő
AMICO V2 heti programozású, digitális távvezérlő
Többfunkciós relé panel
Zóna vezérlő doboz
Ø 80 mm-es, vízszintes elvezető készlet végelem nélkül
Ø 60/100 mm-es, koaxiális, vízszintes készlet
Ø 60/100 mm-es, koaxiális, vízszintes kivezetés
Ø 60/100 mm-es, koaxiális, függőleges készlet cserép vörös színben
Ø 80/80 mm-es, szétválasztott készlet
Ø 80 mm-es vízszintes elvezető készlet túlnyomásos üzemre alkalmas kéménybe történő bekötéshez
Ø 80 mm-es vízszintes ki- és bevezető készlet
Ø 80 mm-es végelem vízszintes ki- és bevezetéshez
Ø 80 mm-es függőleges ki- és bevezető készlet
Ø 80/125 mm-es vízszintes kivezető készlet induló idommal
Ø 80/125 mm-es függőleges kivezető készlet induló idommal és ferde tető átvezető gallérral
Ø 60 mm-es tömítőgyűrű
Ø 80 mm-es tömítőgyűrű
Ø 80 mm-es tömítőgyűrű ívekbe
Ø 100 mm-es tömítőgyűrű
Ø 110 mm-es tömítőgyűrű
Ø 125 mm-es tömítőgyűrű
Ø 60/100 mm-es tömítőgyűrű
Ø 80 mm-es, 0,5 m-es toldócső
Ø 80 mm-es, 1 m-es toldócső
Ø 80 mm-es, 2 m-es toldócső
Ø 60/100 mm-es, 0,5 m-es toldócső
Ø 60/100 mm-es, 1 m-es toldócső
Ø 80/125 mm-es, 1 m-es toldócső
Ø 80/125 mm-es, 2 m-es toldócső
Ø 80 mm-es, 90°-os ív
Ø 80 mm-es, 45°-os ív
Ø 60/100 mm-es, 90°-os ív
Ø 60/100 mm-es, 45°-os ív
Ø 80/125 mm-es, 90°-os ív
Ø 80/125 mm-es, 45°-os ív
Ø 80 mm-es, karimás, induló idompár
Ø 60 mm-es, 1 m-es toldócső
Ø 60 mm-es, 2 m-es toldócső
Ø 60 mm-es, 90°-os ív
Ø 60 mm-es, 45°-os ív
Ø 60 mm-es rögzítő kengyel csőtoldatok szétcsúszása ellen
Ø 60 mm-es támasztó gyűrű kéményben történő szereléshez a cső központosításához
Felfúrható konzol és csúszó támasztó lemez
Ø 60 mm-es, induló készlet a kémény bekötéshez, Ø 80/60 mm-es szűkítő idommal, 90°-os ívvel és rögzítő pánttal
Kémény szerelőnyílását lezáró készlet szerelőnyílást lezáró lemezzel, tartólemezekkel Ø 80-mm-es bekötéshez, szorítógyűrűs csatlakozóval a kondenzvíz kivezetéshez
Ø 80/125 mm-es, lapos tető átvezető gallér
Ø 80 mm-es flexibilis béléscső készlet
Alap készlet 80-as flexibilis béléscső rendszerhez
Ø 80/125 m-es füstgáz kivezető végelem, kültéri egység 80-as flexibilis béléscső rendszerhez
Toldó adapter 80-as flexibilis csövek közé
Ø 80 mm-es, karimás, induló idom füstgáz elvezetéshez
Ø 60/100 mm-es, karimás, induló idom
Ø 80/125 mm-es, karimás, induló idom
Ø 100 mm-es, fali, csatlakozó idom C9X rendszerhez
Ø 125 mm-es, fali, csatlakozó idom C9X rendszerhez, Ø 80/125 mm-es, karimás, induló idommal
Ø 60/100 mm-es, egyenes idom nyitható vizsgáló nyílással
Ø 80/125 mm-es, egyenes idom nyitható vizsgáló nyílással
Ø 60/100 mm-es, könyök idom nyitható vizsgáló nyílással
Ø 80/125 mm-es, könyök idom nyitható vizsgáló nyílással
Ø 60 mm-es végelem függőleges kivezetéshez, fehér színben, esővédő sapkával és kéménylezáró lemezzel
Ø 80/125 m-es füstgáz kivezető végelem, kültéri egység 50-es flexibilis béléscső rendszerhez
Alap készlet 50-es flexibilis béléscső rendszerhez
Toldó adapter 50-es flexibilis csövek közé
Clone of Ø 50 mm-es flexibilis béléscső készlet
80 mm-es hajlított bekötő készlet (70 fokos) flexibilis rendszerhez
Ø 80 mm-es rögzítő kengyel csőtoldatok szétcsúszása ellen
Ø 80 mm-es támasztó gyűrű kéményben történő szereléshez a cső központosításához
60 mm-es bővítő idom 80 mm-es flexibilis rendszerhez
Takaró gyűrű fali átvezeteséhez 80 mm-es fehér
Takaró gyűrű fali átvezeteséhez 100 mm-es fehér
Takaró gyűrű fali átvezeteséhez 125 mm-es fehér
Takaró gyűrű fali átvezeteséhez 80 mm-es szürke
Takaró gyűrű fali átvezeteséhez 100 mm-es szürke