VICTRIX Zeus 26 ErP

Rendelési kód | 3.025457
Kifutott termék.
  • 23.6kW Névleges fűtési teljesítmény
  • 26.0kW Névleges HMV teljesítmény
  • Fali beépített tárolós kombi Működés módja
  • 92% "A" kategória fűtés, "A" XL kategória HMV Szezonális hatásfok (2010/30/EU)
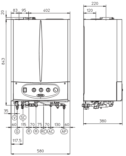
  • 843 / 580 / 380 Méret (mag/szél/mély)

Bemutatás

Az VICTRIX Zeus 26 ErP fali készülék 23,6 kW teljesítménnyel képes fűtési-, ill. 26 kW teljesítménnyel tárolós rendszerben használati melegvizet előállítani. A készülék az (opcionális) Amico távszabályzóval könnyen és gyorsan, a készüléktől távolról is vezérelhető. Külső érzékelő csatlakoztatása esetén időjárásfüggő szabályozás is lehetséges. Beépített tárolója révén akár két melegvíz-csapoló egyidejű használata esetén is kellő mennyiségű melegvizet képes előállítani. A készülék tartalmazza a használati melegvíz oldali tágulási tartályt, valamint a fali kiálláshoz történő csatlakozáshoz szükséges bekötőkészletet is.

KÉT FÜGGETLEN HŐCSERÉLŐ

Mind a fűtési, mind a HMV hőcserélő rozsdamentes acélból készült.

DIGITÁLIS VEZÉRLÉSŰ LÁNGMODULÁCIÓ

Az elektronikus lángmoduláció folyamatos energia megtakarítás és emelt szintű komfort biztosítása mellett képes a fűtővíz, valamint a használati melegvíz hőmérsékletének megfelelő szabályozására.

HMV TÁGULÁSI TARTÁLY

A HMV körben jelentkező nyomásnövekedés kompenzálására a Zeus kW készülékekbe egy második tágulási tartály is beépíthető.

SZABÁLYOZHATZÓ BY-PASS 

A beépített, szabályozható by-pass lehetővé teszi a kazán használatát termosztatikus szeleppel felszerelt radiátoros rendszer esetén is. A szabályozható by-pass optimális működést tesz lehetővé.

MOTOROS VÁLTÓSZELEP

A használati melegvíz előállításakor a beépített, motoros váltószelep irányítja a kazánvizet a HMV hőcserélő felé.

BEÉPÍTETT IDŐJÁRÁSFÜGGŐ SZABÁLYOZÁS

Az időjárásfüggő szabályozás magasabb komfort mellett biztosít költséghatékonyabb üzemelést. Az elektronika a külső hőmérséklet függvényében változtatja a kazánvíz-hőmérsékletet, így energiát takarít meg és magasabb komfortot biztosít. A készülék elektronikája tetszőleges szabályozási egyenes beállítását teszi lehetővé. 

ROZSDAMENTES ACÉL MELEGVÍZTÁROLÓ

A beépített 45 literes űrtartalmú melegvíztároló lehetővé teszi a melegvíz felhasználást két csapoló, például zuhany és mosogató csap egyidejű működtetésekor is.

HMV TÁGULÁSI TARTÁLY

A HMV körben jelentkező nyomásnövekedés kompenzálására a Victrix Zeus Superior ErP készülékek egy második beépített tágulási tartállyal is rendelkeznek a HMV kör számára.

BEKÖTŐCSŐKÉSZLET GYÁRILAG A KÉSZÜLÉK MELLÉ CSOMAGOLVA

EGYÜTTMŰKÖDÉS A DIM EGYSÉGEKKEL 

A VICTRIX Zeus Superior ErP készülékek teljes körűen képesek együttműködni az Immergas DIM egységeivel, így lehetséges több, egymástól független fűtési kör (akár radiátoros, akár kevert) kialakítása.

KONDENZÁCIÓS TECHNOLÓGIA

Az égéstermék rejtett hőjének (vízgőz tartalmának) kihasználása (kondenzációja) révén ugyanannyi energiát, mint a hagyományos, nem kondenzációs készülékek, kevesebb gáz eltüzelésével képesek leadni. A jobb tüzeléstechnikai hatásfok révén nem csak energiát takarít meg, hanem a környezetet is kevésbé terheli. 

IPX4D ELEKTROMOS VÉDETTSÉG

Magas páratartalmú és fröccsenő vizes környezetben is biztosítja a készülék biztonságos működését.

Méretek

BEFOGLALÓ MÉRETEK

Típus

Magasság

[mm]

Szélesség

[mm]

Mélység
[mm]

Füstgáz evezetés / levegő bevezetés mérete

[mm]

VICTRIX Zeus 26 ErP

843

580

380

Ø 60/100

CSATLAKOZÓ MÉRETEK

Típus

Fűtési előremenő
M

Fűtési visszatérő
R

Használati

melegvíz
AC

HMV

cirkuláció
RC

Használati

hidegvíz
AF

Kondenzvíz

elvezetés
SC

Gáz


G

Elektromos
hálózat
V

VICTRIX Zeus 26 ErP

3/4"

3/4"

1/2"

1/2"

1/2"

NA15

1/2"

23OV / 50Hz

Kiegészítők

Legfeljebb háromzónás rendszer kialakításához alkalmazható elektronikus vezérlőáramkör. A bemenő jel bármilyen törpefeszültségű zárókontaktus (szobatermosztáttól), a kimenő relével védett hálózati feszültség (zónaszelephez, szivattyúhoz). Az egyes zónák egymástól függetlenül vezérelhetők. Ellentétben a DIM hidraulikai rendszerek áramkörével, a kimeneti (kazán felé menő) termosztát csatlakozás relével nem védett, ezért csak olyan Immergas kazánokhoz alkalmazható, melyek szobatermosztát csatlakozása a törpefeszültségű oldalon van.Megtekintés

Zóna vezérlő doboz

Letölthető anyagok

CE Tanúsítvány
Kézikönyv
Prospektus
CAD fájl
EU megfelelősségi nyilatkozat
Égéstermék elvezetés méretezése
Oldal tetejére