VICTRIX Pro 120 (2015-ig)
- 121.7kW Névleges fűtési teljesítmény
- - Névleges HMV teljesítmény
- Fali fűtő (tároló előkészítéssel) Működés módja
- - Szezonális hatásfok (2010/30/EU)
- 1038 / 600 / 627 Méret (mag/szél/mély)
Bemutatás
A VICTRIX Pro 120 kondenzációs gázkazán egy nagy hőteljesítményű (121,7 kW @ 50/30 C), falra szerelhető készülék. Indirekt tároló csatlakoztatásával képes használati melegvizet előállítani. Nagy teljesítménye és kaszkádba kötési lehetősége miatt társasházak, ipari létesítmények ideális megoldása lehet. A digitális kaszkád és zóna vezérlő csatlakoztatásával lehetőség van három fűtési kör (egy direkt kör és maximum két keverőszelepes, vagy további két direkt kör) kialakítására, valamint egy indirekt HMV tároló vezérlésére. A kaszkád szabályozó akár 8 VICTRIX Pro készüléket is képes vezérelni, folyamatos teljesítmény-szabályozás mellett. A kaszkád szabályozó egységekből akár 5 is összeköthető, így összesen 15 fűtési kör (5 direkt és 10 keverőszelepes vagy direkt) kialakítása lehetséges, valamint 5 HMV tároló vezérlése. Fűtési rendszer kialakításához a készüléket hidraulikai váltón keresztül kell a rendszerhez csatlakoztatni, mert a készülék szivattyúja nem képes a teljes rendszerben lévő vizet keringtetni.
ROZSDAMENTES ACÉL HŐCSERÉLŐ
A fűtő köri hőcserélő rozsdamentes acélból készült.
MÉG SZÉLESEBB MODULÁCIÓS TARTOMÁNY
Működés közben a teljesítmény 10-100% között változik a pillanatnyi szükségleteknek megfelelően.
DIGITÁLIS VEZÉRLÉSŰ LÁNGMODULÁCIÓ
Az elektronikus lángmoduláció folyamatos energia megtakarítás és emelt szintű komfort biztosítása mellett képes a fűtővíz, valamint a használati melegvíz hőmérsékletének megfelelő szabályozására.
ELŐKÉSZÍTVE KÜLSŐ TÁROLÓ CSATLAKOZATÁSÁRA
Használati melegvíz előállítására indirekt tároló csatlakoztatásával képes, melynek vezérlése a készülék alapfelszereltsége. A csatlakoztatáshoz motoros váltószelep készlet (opcionális) szükséges.
DIGITÁLIS KEZELŐFELÜLET
A digitális kezelőfelület biztosítja a készülék könnyű kezelhetőségét. A kézreálló gombokkal pontosan beállítható a hőmérséklet, illetve az egyéb paraméterek. A kijelző ábrák és kódok segítségével tájékoztat az aktuális üzemmódról és az esetleges hibákról.
BEÉPÍTETT IDŐJÁRÁSFÜGGŐ SZABÁLYOZÁS
Az időjárásfüggő szabályozás magasabb komfort mellett biztosít költséghatékonyabb üzemelést. Az elektronika a külső hőmérséklet függvényében változtatja a kazánvíz-hőmérsékletet, így energiát takarít meg és magasabb komfortot biztosít.
LEHETŐSÉG TÖBBKAZÁNOS RENDSZER KIÉPÍTÉSÉRE
A VICTRIX Pro készülékek az Immergas kaszkád és zóna szabályozója (opcionális) segítségével képesek többkazános (kaszkád, maximum 8 készülékig) rendszerben is együttműködni, így akár több, mint 900 kW hőteljesítményt nyújtva.
KONDENZÁCIÓS TECHNOLÓGIA
Az égéstermék rejtett hőjének (vízgőz tartalmának) kihasználása (kondenzációja) révén ugyanannyi energiát, mint a hagyományos, nem kondenzációs készülékek, kevesebb gáz eltüzelésével képesek leadni. A jobb tüzeléstechnikai hatásfok révén nem csak energiát takarít meg, hanem a környezetet is kevésbé terheli.
ARÁNYOS 0-10 V SZABÁLYOZÁSI LEHETŐSÉG
Az analóg bemeneten keresztül 0-10 V arányos szabályozással lehetőség van vagy a teljesítmény, vagy az előremenő fűtővíz hőmérséklet szabályzására.
"EASY CASCADE" TÖBBKAZÁNOS ÜZEMMÓD
Amennyiben legfeljebb két egyforma teljesítményű VICTRIX Pro készülék működik egy rendszerben, nincs szükség az Immergas kaszkád és zóna szabályozóra a kazánok vezérléséhez. Az Easy Cascade rendszernek köszönhetően ilyen összeállításban elegendő a kazánok saját, beépített vezérlésére hagyatkozni!
IPX5D ELEKTROMOS VÉDETTSÉG
Magas páratartalmú és fröccsenő vizes környezetben is biztosítja a készülék biztonságos működését.
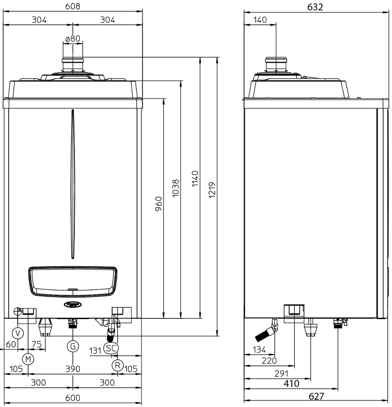
Méretek
|
BEFOGLALÓ MÉRETEK |
|||
|
Magasság [mm] |
Szélesség [mm] |
Mélység (C) |
Füstgáz evezetés / levegő bevezetés mérete [mm] |
|
1038 |
600 |
627 |
Ø 80 / 125 |

|
CSATLAKOZÓ MÉRETEK |
||||
|
Fűtési előremenő |
Fűtési visszatérő |
Gáz
|
Kondenzvíz elvezetés SC |
Elektromos hálózat |
|
1 1/2" |
1 1/2" |
1" |
NÁ 25 |
23OV / 50Hz |