VICTRIX Pro V2 100
- 90.9kW Névleges fűtési teljesítmény
- - Névleges HMV teljesítmény
- Fali fűtő (tároló előkészítéssel) Működés módja
- 94% "A" kat. Szezonális hatásfok (2010/30/EU)
- 1098 / 600 / 557 Méret (mag/szél/mély)
Bemutatás
A VICTRIX Pro V2 gázkészülék egy nagy hőteljesítményű, falra szerelhető kondenzációs kazán ami indirekt tároló csatlakoztatásával képes használati melegvizet előállítani. Nagy teljesítménye és kaszkádba kötési lehetősége miatt társasházak, ipari létesítmények ideális megoldása lehet. Az integrált távfelügyelettel ellátott digitális kaszkád és zóna vezérlő csatlakoztatásával és bővítőegységével lehetőség van akár 5 fűtési kör (egy direkt kör és maximum négy keverőszelepes) kialakítására, valamint egy indirekt HMV tároló vezérlésére. A kaszkád szabályozó akár 8 VICTRIX Pro V2 készüléket is képes léptetni folyamatos teljesítmény-szabályozás mellett. A kaszkád szabályozó egységekből akár 3 is összeköthető, így összesen 15 fűtési kör kialakítása lehetséges, valamint 3 HMV tároló vezérlése. Fűtési rendszer kialakításához a készüléket hidraulikai váltón vagy hőcserélőn keresztül kell a rendszerhez csatlakoztatni a kazánkör és a fűtési kör eltérő tömegárama miatt, a kazán védelme érdekében a hőcserélős leválasztás a preferált.
ROZSDAMENTES ACÉL HŐCSERÉLŐ
A fűtő köri hőcserélő rozsdamentes acélból készült.
MÉG SZÉLESEBB MODULÁCIÓS TARTOMÁNY
Működés közben a teljesítmény 10-100% között változik a pillanatnyi szükségleteknek megfelelően.
DIGITÁLIS VEZÉRLÉSŰ LÁNGMODULÁCIÓ
Az elektronikus lángmoduláció folyamatos energia megtakarítás és emelt szintű komfort biztosítása mellett képes a fűtővíz, valamint a használati melegvíz hőmérsékletének megfelelő szabályozására.
ELŐKÉSZÍTVE KÜLSŐ TÁROLÓ CSATLAKOZATÁSÁRA
Használati melegvíz előállítására indirekt tároló csatlakoztatásával képes, melynek vezérlése a készülék alapfelszereltsége. A csatlakoztatáshoz motoros váltószelep készlet (opcionális) szükséges.
DIGITÁLIS KEZELŐFELÜLET
A digitális magyar nyelvű kezelőfelület biztosítja a készülék könnyű kezelhetőségét. A kézreálló gombokkal pontosan beállítható a hőmérséklet, illetve az egyéb paraméterek. A kijelző ábrák és kódok segítségével tájékoztat az aktuális üzemmódról és az esetleges hibákról.
BEÉPÍTETT IDŐJÁRÁSFÜGGŐ SZABÁLYOZÁS
Az időjárásfüggő szabályozás magasabb komfort mellett biztosít költséghatékonyabb üzemelést. Az elektronika a külső hőmérséklet függvényében változtatja a kazánvíz-hőmérsékletet, így energiát takarít meg és magasabb komfortot biztosít.
KONDENZÁCIÓS TECHNOLÓGIA
Az égéstermék rejtett hőjének (vízgőz tartalmának) kihasználása (kondenzációja) révén ugyanannyi energiát, mint a hagyományos, nem kondenzációs készülékek, kevesebb gáz eltüzelésével képesek leadni. A jobb tüzeléstechnikai hatásfok révén nem csak energiát takarít meg, hanem a környezetet is kevésbé terheli.
TÖBBFÉLE SZABÁLYOZÁSI LEHETŐSÉG
A fejlett elektronika képes fogadni 0-10V, Opentherm és Modbus csatlakozást.
"EASY CASCADE" TÖBBKAZÁNOS ÜZEMMÓD
A VICTRIX Pro V2 készülékekból 15 db kapcsolható kaszkádba külön kaszkádszabályzó használata nélkül. Ebben az esetben a rendszer képes kezérelni 1 kevert kört, 1 direkt kört és 1 melegviz kört.
IPX5D ELEKTROMOS VÉDETTSÉG
Magas páratartalmú és fröccsenő vizes környezetben is biztosítja a készülék biztonságos működését.
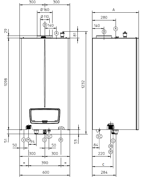
Méretek
|
BEFOGLALÓ MÉRETEK |
|||
|
Magasság [mm] |
Szélesség [mm] |
Mélység (C) |
Füstgáz evezetés / levegő bevezetés mérete [mm] |
|
1098 |
600 |
557 |
Ø 110 / 160 |

|
CSATLAKOZÓ MÉRETEK |
||||
|
Fűtési előremenő |
Fűtési visszatérő |
Gáz
|
Kondenzvíz elvezetés SC |
Elektromos hálózat |
|
1 1/2" |
1 1/2" |
3/4" |
NÁ 25 |
23OV / 50Hz |
Műszaki adatok

Kiegészítők
Kaszkádszabályzó integrált távfelügyelettel
Bővítőmodul kaszkádszabályzóhoz
Busz modul
Zónakezelő (kaszkádszabályzóhoz)
Digitális távvezérlő (Kaszkád- és zónaszabályozó NÉLKÜL)
Külsőhőmérséklet-érzékelő (Kaszkád szabályzóba csatlakoztatható érzékelő )
Külsőhőmérséklet-érzékelő
Előremenő fűtővíz hőmérséklet érzékelő (Kaszkád- és zóna-szabályzóhoz)
Előremenő fűtővíz hőmérséklet érzékelő (Kaszkád- és zónaszabályozó nélkül)
HMV tároló érzékelő (Kaszkád- és zóna-szabályzóhoz)
HMV tároló érzékelő (Kaszkád- és zóna-szabályzó NÉLKÜL)
Napkollektor érzékelő (Integrált digitális rendszer - vagy kaszkád szabályzóhoz)
Hidraulikai váltó kaszkád kapcsoláshoz 100 kW-ig
Hidraulikai váltó kaszkád kapcsoláshoz 200 kW-ig
Hidraulikai váltó kaszkád kapcsoláshoz 400 kW-ig
Hidraulikai váltó kaszkád kapcsoláshoz 350 kW-ig
Hidraulikai váltó kaszkád kapcsoláshoz 600 kW-ig
Váltószelep készlet indirekt tárolóhoz
Biztonsági szerelvénycsoport egykazános telepítéshez
Biztonsági szerelvénycsoport kaszkád kötéshez (VICTRIX PRO 80-100-120 ErP)
IPX4 védettségű doboz biztonsági szerelvénycsoporthoz Egy készülékes telepítéshez
IPX4 védettségű doboz biztonsági szerelvénycsoporthoz Kaszkád szerelvénycsoporthoz
Ø 160 mm-es, 0,5 m-es toldócső
Ø 160 mm-es, 1 m-es toldócső
Ø 200 mm-es, 0,5 m-es toldócső
Ø 200 mm-es, 1 m-es toldócső
Ø 250 mm-es, 1 m-es toldócső
Ø 160 mm-es, 45°-os ív
Ø 200 mm-es, 45°-os ív
Ø 250 mm-es, 45°-os ív
Ø 160 mm-es, 87°-os ív
Ø 200 mm-es, 87°-os ív
Ø 250 mm-es, 87°-os ív
Ø 160 mm-es gyűjtőcső készlet 2 darab VICTRIX PRO V2 35-80 gázkazán kaszkádba kötéséhez
Ø 160 mm-es gyűjtőcső készlet plusz 1 darab VICTRIX PRO V2 35-80 gázkazán kaszkádba kötéséhez, füstgázcsappantyúval
Kondenzátum semlegesítő 1500 kW-ig (granulátumot tartalmazza)
Kondenzátum semlegesítő (Victrix Pro V2 180-ig)
Granulátum kondenzvíz semlegesítőbe (5 kg)
Granulátum kondenzvíz semlegesítőbe (25 kg)