- 126 liter Tároló mérete
- - Működés módja
- rozsdamentes acél Tároló anyaga
- 28 kW Hőcserélő teljesítmény
- - Szezonális hatásfok (2010/30/EU)
Bemutatás
Melegvíz tároló rozsdamentes acélból
- Beépített magnézium anódrúd
- Beépített 5,0 literes tágulási tartály
- Hőcserélő űrtartalma: 2 x 2,18 liter
- Hőcserélő felülete: 2 x 0,51 m2
- Tömege víz nélkül: 74 kg
- EN 625 szerinti hővesztesége: 0,105 kW
- Megengedett legnagyobb nyomás a tárolóban: 8 bar
- Megengedett legnagyobb nyomás a hőcserélőben: 6 bar
Biztonsági szeleppel szállítva
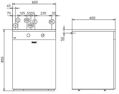
Méretek

Jelmagyarázat:
E - használati hidegvíz bemenet (G 1/2")
U - használati melegvíz előremenő (G 1/2")
RB - tároló visszatérő vezeték (kazán felé) (G 3/4")
MB - tároló előremenő vezeték (kazán felöl) (G 3/4")
RC - HMV cirkulációs vezeték (külön rendelhető) (G 1/2")